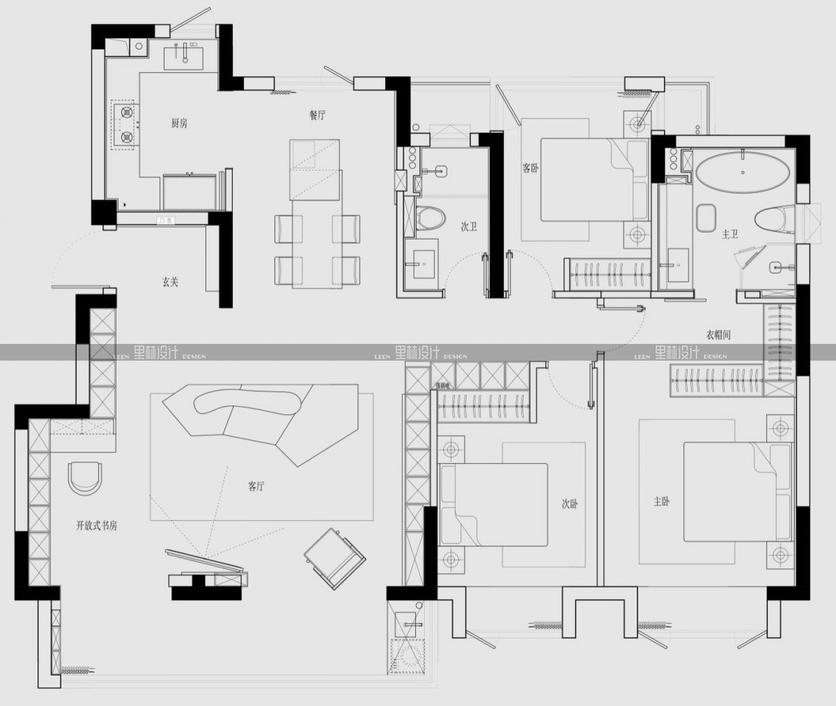
名称 180平精装房改造现代风格装修案例
户型 平层
面积 140-200平米
风格 意式
看看这套别墅装修花了多少钱?
工程费用:??
工程费用:??
设计费用:??
软装费用:??
立即报名预约本案设计师,免费获取美家初案
全维度打造品质人居,帮你遇见更好的自己

将你的审美偏好,兴趣爱好和生活习惯等融入每一个设计细节,打造你心中的完美家

用心考量,合理规划空间,以 共享和独处的平衡为界限,找 到家人间最理想的相处方式

不仅满足当前的需求,也考虑 未来5-10年的生活变化,为你 设计生活、规划未来

不是把更贵的产品卖给更少的 人,而是让更多的人以更低的 价格享受到更好的产品

















